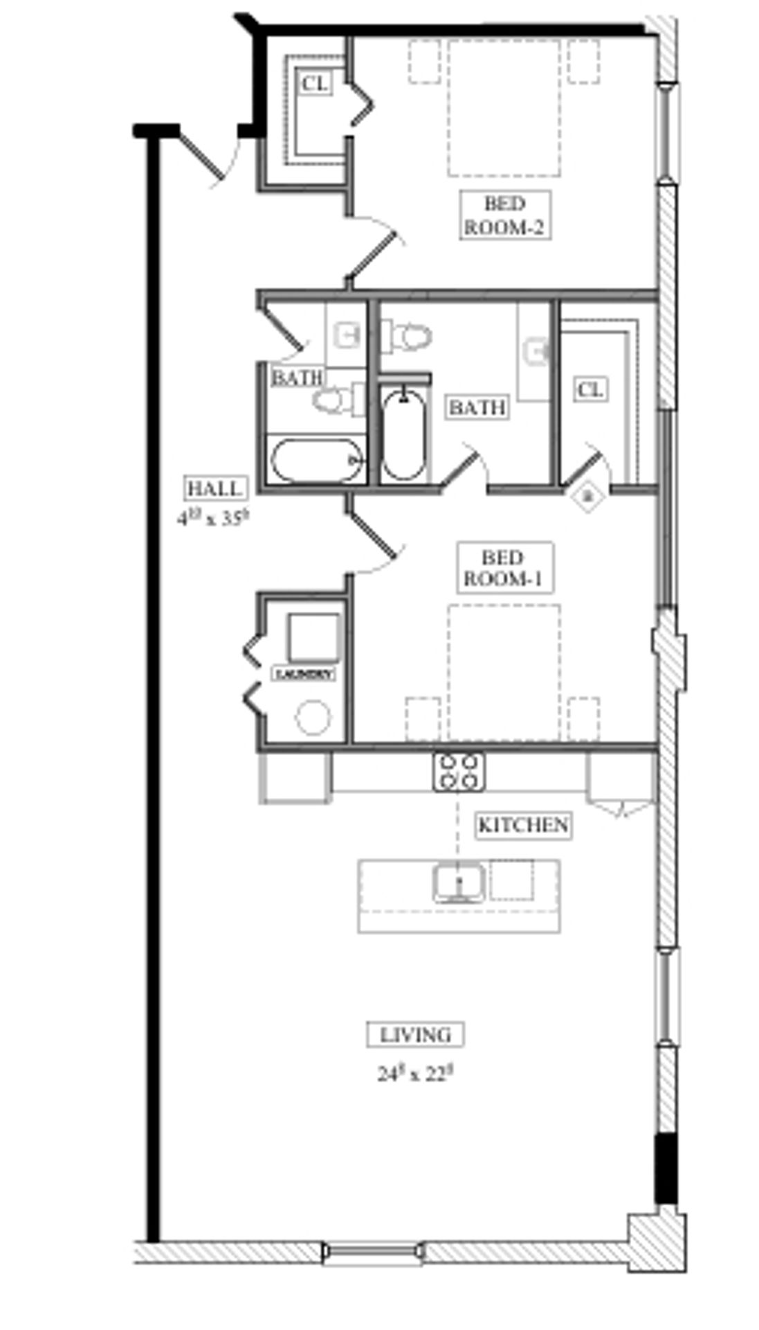
502 West Broadway Street - E-149, Griffin, GA 30223

502 West Broadway Street - E-149, Griffin, GA 30223